Eladó Családi ház Kerepes - Kerepes központi, csendes részén

85 m2Alapterület 2 Szoba
58 000 000 Ft Ár
391663Azonosító
További adatok

555 m2 Telek

Kertre néző Kilátás

Felújítandó Állapot

Tégla Szerkezet

10 m2 Erkély/terasz

Gáz (cirkó) Fűtés

Komfort Komfort

Saját garázs Parkolás

Tömegközlekedés

Nem Amerikai konyhás

Van Kertkapcsolat

1960 Építés éve

Keleti Tájolás

Hitelkalkuláció – a részletekért kattintson valamelyik bank logójára!

KEREPESEN, CSENDES MELLÉKUTCÁJÁBAN, TEHERMENTES CSALÁDI HÁZ ELADÓ!!!

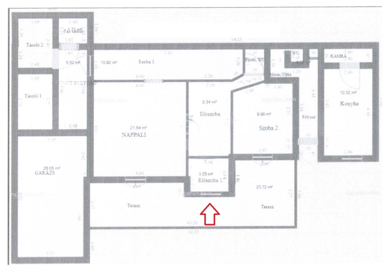
Kerepes csendes mellékutcájában, kertvárosi ősfás környezetben, 555 nm-es telken lévő, egy szintes, 1960-as években épült, felújítandó állapotú, 85 nm-es, 2 szobás, Keleti fekvésű, teraszos, gáz cirkó és vegyes tüzelésű kazán fűtéses, rugalmasan birtokba vehető, TEHERMENTES családi ház eladó.

A konyha külön bejáraton keresztül közelíthető meg, ebben az épület részben kamra, wc, mosó - és kazánhelyiség és egy pince található.

A kert kúttal, garázzsal, több tárolóval ellátott, ezen felül több gépjármű parkolására is alkalmas.

A környék ellátottsága, infrastruktúrája kiváló, a közelben bevásárlási lehetőségek (Lidl, Penny, Aldi), iskola, óvoda, bölcsöde, gyógyszertár, uszoda, sportközpont, busz - és HÉV megállók sétatávolságra, az Örs Vezér tere 20 percen belül elérhető, személygépkocsival az M0-ás, M3-mas autópálya perceken belül megközelíthető!

Érdemes megnézni, bővebb információért hívjon bizalommal akár hétvégén is, előre egyeztetett időpontban kizárólag ingatlanközvetítő bevonásával megtekinthető!
L.D

INGYENES hitel tanácsadás, CSOK Plusz, OTTHON START ügyintézés!
BANKFÜGGETLEN hitelcentrumunk az összes elérhető bank és hitelintézet ajánlatát versenyezteti az Ön kedvéért, ráadásul DÍJMENTESEN.

- Egyedi, bankfiókban nem elérhető kamat- és díjkedvezmények
- Hitelképesség vizsgálat
- Idő, energia és pénz megtakarítás
- Teljes hivatali ügyintézés
Tőkés Levente

Tőkés Levente

Hívjon bizalommal

+36-30-362-Mutasd!

További hirdetéseim

Ingatlaniroda
GDN Ingatlanhálózat - AllStars
+36-70-421-3991

Küldjön üzenetet

Visszahívást kérek

Hasonló ingatlanok