Eladó Lakás (téglaépítésű) Budapest VIII. kerület - Népszínház utca

177 m2Alapterület 4 + 1 Szoba
172 500 000 Ft Ár
393418Azonosító
További adatok

Utcai Kilátás

Jó állapotú Állapot

Tégla Szerkezet

4 m2 Erkély/terasz

Gáz (héra) Fűtés

Összkomfort Komfort

Utcán, közterületen Parkolás

Emelet 2

Nincs Lift

Kiváló Tömegközlekedés

Nem Amerikai konyhás

Nincs Kertkapcsolat

1890 Építés éve

Hitelkalkuláció – a részletekért kattintson valamelyik bank logójára!

Fényben úszó 177 m² alapterülettel rendelkező saroklakás a II. János Pál pápa térnél – végtelen lehetőségek tára.

A befektetés és az álomotthon találkozása.
Budapest VIII. kerületének egyik legígéretesebb részén, a Népszínház utcában kínálunk eladásra egy kivételes adottságokkal rendelkező, 2. emeleti nagypolgári saroklakást.

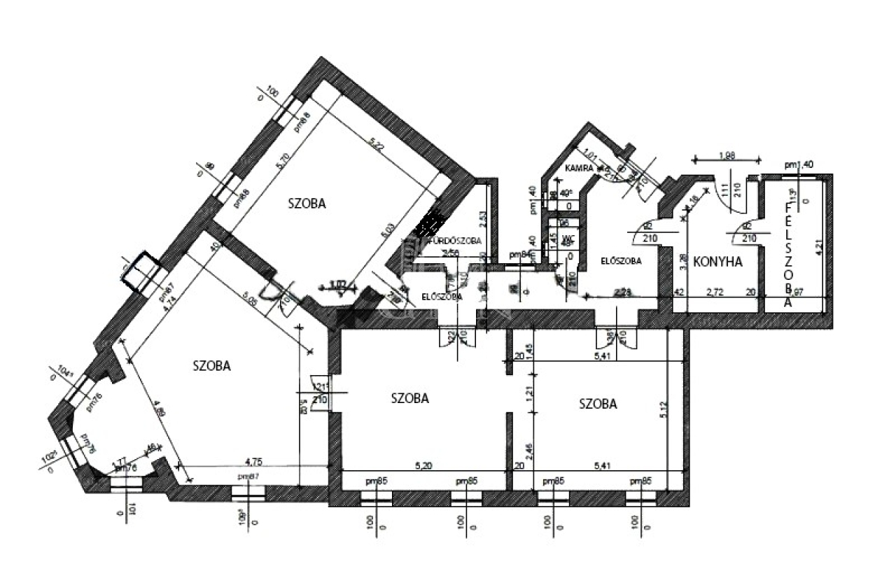
Az ingatlan legnagyobb értéke az eredeti kialakításában rejlik: a hatalmas, tágas terek és a logikus elosztás lehetővé teszi a teljes újragondolást, legyen szó luxusrezidenciáról vagy üzleti beruházásról.

Miben rejlik a lakás különlegessége?

• Hamisítatlan polgári hangulat: megmaradtak a klasszikus stílusjegyek, a lenyűgöző belmagasság, az elegáns belső arányok és a minden szobában megtalálható, működő cserépkályhák.
• Rugalmas és körbejárható alaprajz: a terek láncolata nemcsak elegáns térérzetet ad, hanem rendkívül praktikus is. A belső falak szabadon alakíthatók, a két külön bejárat és a körbejárható kialakítás révén az ingatlan akár 4-5 önálló stúdiólakássá is átépíthető.
• Rendkívüli fényviszonyok: a sarokelhelyezkedésnek és a nagyméretű, dupla utcai ablakoknak köszönhetően a terek egész nap világosak. Az egyik szobából saját erkély nyílik.
• Tágas helyiségek: az ingatlan négy impozáns méretű szobából (45 m², 30 m², 26 m², 27 m²) és egy 8 m²-es félszoba-méretű helyiségből áll, kiegészülve egy udvari nézetű konyha-étkezővel.

Hasznosítási javaslatok:

A házban az Airbnb/rövid távú kiadás engedélyezett, így befektetők számára kiemelkedő hozamot ígér. Emellett a méretei és a lokációja miatt tökéletes választás lehet:
• Exkluzív irodának, ügyvédi irodának vagy magánrendelőnek.
• Kreatív stúdiónak, vagy művészeti galériának.
• Többgenerációs családi otthonnak, ahol mindenki saját lakosztályt kaphat.

Lokáció és fejlődés:

Az ingatlan mindössze 200 méterre található a megújult II. János Pál pápa tértől. A környék infrastruktúrája kiváló, a belváros és az egyetemek pár perc alatt elérhetőek. A városrész dinamikus fejlődése és a prémium szolgáltatások iránti növekvő igény garantált értéknövekedést biztosít.

Kedvezményes hiteligénylés, CSOK, BABAVÁRÓ támogatás esetén, kezdeményezheti a kapcsolatfelvételt díjmentesen bankfüggetlen hitelszakértő munkatársunkkal.

Az ingatlan megtekintése előre egyeztetett időpontban lehetséges, akár hétvégén is.

Amennyiben felkeltette az érdeklődését, további kérdéseivel kapcsolatban várom a jelentkezését.
Agatity Roland

Agatity Roland

Hívjon bizalommal

+36-70-421-Mutasd!

További hirdetéseim

Ingatlaniroda
GDN Ingatlanhálózat - AllStars
+36-70-421-3991

Küldjön üzenetet

Visszahívást kérek

Hasonló ingatlanok