Eladó Családi ház Székesfehérvár - Maroshegyen

100 m2Alapterület 5 Szoba
119 900 000 Ft Ár
393625Azonosító
További adatok

440 m2 Telek

Udvari Kilátás

Új Állapot

Tégla Szerkezet

16 m2 Erkély/terasz

Hőszivattyú Fűtés

Összkomfort Komfort

Saját beálló Parkolás

Tömegközlekedés

Amerikai konyhás

Van Kertkapcsolat

2026 Építés éve

Hitelkalkuláció – a részletekért kattintson valamelyik bank logójára!

!!! ENERGIATAKARÉKOS, ÚJ ÉPÍTÉSŰ OTTHON!!!
2026.év végén KÖLTÖZHETŐ!


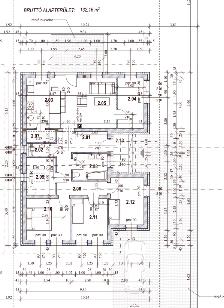
H-004763. Maroshegyen- Harmatosvölgy II. ben, frekventált, kedvelt CSENDES zsákutcás részén, összközműves építési telken eladó egy egyszintes, igényes, egyedi kivitelezésű 100 m2 hasznos alapterületű +16m2 terasz, nappali + 4 szobás családi ház.

Energiahatékony ingatlan, rezsiköltség rendkívül alacsony!
Elérhető : 1 db ház nappali + 4 szoba
Az ingatlan könnyen megközelíthető, a környék tömegközlekedése jó, pár perc alatt gyalogosan elérhető a buszmegálló. A közelben orvos, iskola, Babauszoda, bölcsőde, óvoda, Bevásárló központ, üzletek, Ipari park megtalálhatóak.

A ház tágas, világos, körbe napozott, minőségi anyagokból készült. Külső határoló főfalak Porotherm XD 30 NF téglából,a válaszfalak Porotherm 10 NF kerámia válaszfaltéglákból épültek. A födémen 30 cm vastag ásványgyapot kerül lerakásra, a külső borítás Tondach Bolero Antracit cseréppel készül alatta a megfelelő vastagságú fóliázattal, lenyitható padlásfeljáróval, járhatóvá, rakodhatóvá tehető padlástérrel, padlástéri megvilágítással

A nyílászárók műanyagból készültek, 6-7 kamrás,3 rétegű hőszigetelt üvegezéssel, rajtuk antracit alumínium redőnyök, motoros távirányítós mozgatással,
minden nyílászárón, Ablakokon nagyrészt előre beépített szúnyoghálóval.
Hőszivattyús fűtési rendszer: Levegő-víz Toshiba Estia Air to Water Heat Pump HWSP1105HR-E 11 kW-os hőszívattyú padlófűtési rendszerrel, házi melegvíz tartály elhelyezésével. Helyiségenként szabályozható 6 db termosztát, több fűtési kör letekerve, vezérlés külön szobánként és nappaliban.
A konyhában, a fürdőben, a háztartási helyiségben külön légcserélő kerül beépítésre. A burkolatokmagas minőségű járólap, illetve laminált padló. Fűtése-melegvíz: hőszivattyú padló fűtéses hőleadással, 2 db klíma alapszerelés készült ( kül és beltéri egységet az ár nem tartalmazza).

Megközelítés: aszfaltozott útról, saját utcafront, saját telekterület (440m2), ezen belül saját önálló mérőórák Nincs a szomszédon keresztül, vagy elött / mögött átmászkálás. A házakat kerítés választja el, így, teljesen privát. A megközelítése egymástól független, külön gyalogos, illetve kocsibejáróval

A ház elosztását tekintve: Amerikaikonyhás nappali +kamra, 4 egész szoba, praktikusság miatt fő szempont volt, az élhető terek kialakítása is ezért 9,5-12 m2 nagyságú hálószobák készülnek, továbbá fürdőszoba kialakításra kerül wc-vel ellátva, valamint vendég wc, háztartási helyiség, terasz
Az ár tartalmazza a kulcsrakész ingatlant, az alapszereléseket ( riasztó, klíma..), alap tereprendezést, az oldal kerítéseket, utcafronti kerítés kapu nem készül.

Fontosabb paraméterek:
● 2026-ban épül
● 440 m2 önálló körbekerített telekterület
● Vastag tégla falazat (Porotherm XD 30 NF kerámia+15 cm szigetelés),
● Nappali + 4 hálószoba + kamra + háztartási helyiség+ fürdőszoba+ vendég wc+ terasz(16m2)
● kerti csap
● H tarifás villany
● akadálymentesített bejutás
● hőszivattyú + padlófűtéses hőleadás (helyiségenként szabályozható)
● 2 db Klíma alapszerelés, és a riasztó rendszer alapszerelés
● Alacsony rezsiköltség,

Megbízható és tapasztalt ingatlanfejlesztő, kivitelező jegyzi a ház építését, számtalan referenciaépülettel rendelkezik Székesfehérváron. A vásárláshoz, a jelenleg aktuális családok otthonteremtésére vonatkozó összes támogatás igénybe vehető (CSOK Plusz, Jelzáloghitel, OSP 3% ,Babaváró kölcsön, Piaci hitel…)
Eladási irányár: 119,9 M Ft

Az ingatlan adottságainak, fekvésének köszönhetően alkalmas továbbá vállalkozásra, üzleti vagy befektetési célra, hiszen akár bérbe adható, vagy üzlet, szolgáltatás (pl: orvosi rendelő, fodrász, kozmetika, irodai tevékenység,(Csendes tevékenység engedélyezett).

Ha felkeltette érdeklődését, hívjon bizalommal, (hétvégén is) éljen ingyenes, személyre szabott hitelügyintézés szolgáltatásunkkal. Segítünk továbbá adásvételhez szükséges ügyvédi közreműködésben, energetikai tanúsítvány, valamint értékbecslés elkészítésében.

For English information please send a message.
Kecskeméti Zsolt

Kecskeméti Zsolt

Hívjon bizalommal

+36-30-738-Mutasd!

További hirdetéseim

Ingatlaniroda
GDN Ingatlanhálózat - AllStars
+36-70-421-3991

Küldjön üzenetet

Visszahívást kérek

Hasonló ingatlanok