Eladó Családi ház Siófok - Bajcsy-Zsilinszky út

73 m2Alapterület 4 Szoba
84 900 000 Ft Ár
371424Azonosító
További adatok

300 m2 Telek

Kertre néző Kilátás

Új Állapot

Tégla Szerkezet

11 m2 Erkély/terasz

Hőszivattyú Fűtés

Összkomfort Komfort

Saját beálló Parkolás

Közepes Tömegközlekedés

Amerikai konyhás

Van Kertkapcsolat

2024 Építés éve

Délkeleti Tájolás

Hitelkalkuláció – a részletekért kattintson valamelyik bank logójára!

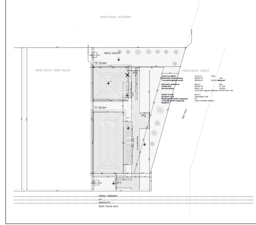
Siófokon a Bajcsy-Zsilinszki utca és a Rét utca közötti újonnan kialakuló lakóparkban, 900 méterre a Balaton partjától, 900m2-es telken nettó 63,07m2-es kulcsrakész ház eladó, 300m2-es kizárólagos használatú telekrésszel!

A közművek kialakítása folyamatban van.

Az ingatlant kivitelező cég építi, várható átadás 2025 harmadik negyedév.

14 lakás alapja elkészült, a tartószerkezeti falak kialakítása folyamatban van. Az ingatlanokhoz szükséges tégla, cserép, fa anyag, nyílászárók beszerzése megtörtént.

A tartószerkezeti falak 30-as porotherm téglából készültek, a padlón 10cm lépésálló szigeteléssel, a homlokzatokon 15cm-es EPS szigeteléssel, a vízszintes födémen 25 cm ásvénygyapot szigeteléssel. A külső nyílászárók korszerű 6 légkamrás, 3 rétegű üvegekkel szereltek.

Fűtéséről és a használati melegvízről monoblockos levegő-víz hőszivattyú gondoskodik, padlón történő hőleadással.

Burkolatok, szaniterek, beltéri ajtók választhatóak.


Érdeklődő ügyfeleinknek a tervdokumetációt és a műszaki tartalmat készséggel rendelkezésre bocsájtjuk.

INGYENES hitel tanácsadás, CSOK Plusz ügyintézés!
BANKFÜGGETLEN hitelcentrumunk az összes elérhető bank és hitelintézet ajánlatát versenyezteti az Ön kedvéért, ráadásul DÍJMENTESEN.

- Egyedi, bankfiókban nem elérhető kamat- és díjkedvezmények
- Hitelképesség vizsgálat
- Idő, energia és pénz megtakarítás
- Teljes hivatali ügyintézés

Amennyiben hirdetésem felkeltette az érdeklődését vagy egyéb információra van szüksége hívjon bizalommal!
Kecskeméti Zsolt

Kecskeméti Zsolt

Hívjon bizalommal

+36-30-738-Mutasd!

További hirdetéseim

Ingatlaniroda
GDN Ingatlanhálózat - AllStars
+36-70-421-3991

Küldjön üzenetet

Visszahívást kérek

Hasonló ingatlanok