Eladó Családi ház Erdőkertes - Dobó utca

92 m2Alapterület 4 Szoba
84 900 000 Ft Ár
393801Azonosító
További adatok

669 m2 Telek

Udvari Kilátás

Felújított Állapot

Tégla Szerkezet

10 m2 Erkély/terasz

Hőszivattyú Fűtés

Dupla komfort Komfort

Saját garázs Parkolás

Tömegközlekedés

Nem Amerikai konyhás

Van Kertkapcsolat

1985 Építés éve

Hitelkalkuláció – a részletekért kattintson valamelyik bank logójára!

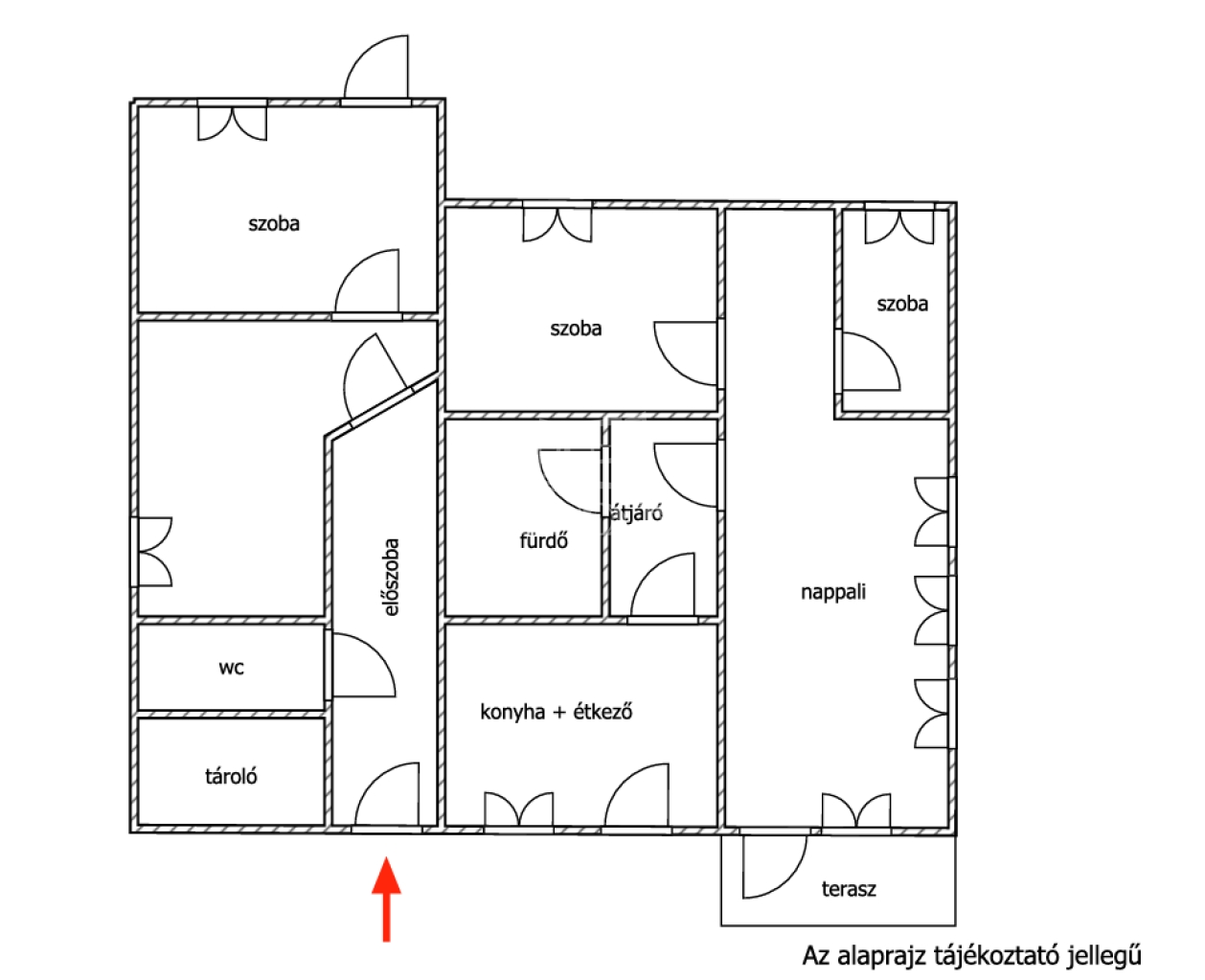
Eladásra kínálok ERDŐKERTESEN egy 4 szobás családiházat.
A ház alapja körülbelül 1985-ben épült, amely tégla szerkezetű, és hozzá építésre került az elmúlt években egy könnyűszerkezetes rész is.
2 külön bejáratú lakás került kialakításra.
Az első, nagyobbik részen nappali, konyha, 2 hálószoba, és egy fürdőszoba található.
A második lakás egy szoba, folyosó, wc, és egy kis tusolós fürdőszoba.
Az udvar rendezett.
2 beállásos lemetózgarázs áll rednelkezésre, melnyek elektromos ajtaja van.
A ház fűtése: hőszivattyúval, és klímával történik.
Napelem 5 kw! 3 db hűtő-fűtő klíma!
Hívjon bizalommal, tekintsük meg együtt!
Agatity Roland

Agatity Roland

Hívjon bizalommal

+36-70-421-Mutasd!

További hirdetéseim

Ingatlaniroda
GDN Ingatlanhálózat - AllStars
+36-70-421-3991

Küldjön üzenetet

Visszahívást kérek

Hasonló ingatlanok